Б 1

Чертеж изделия:
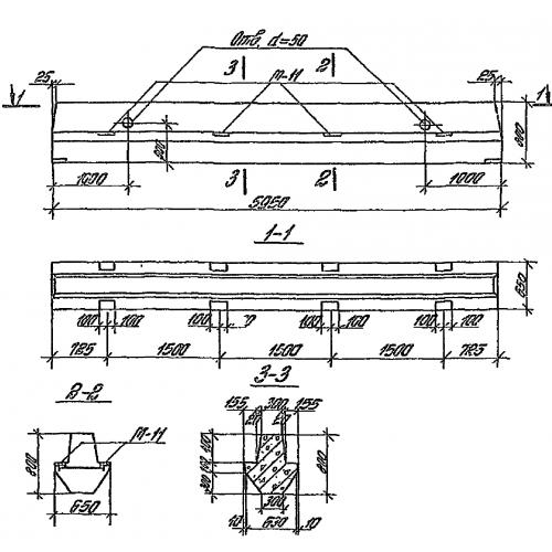
Характеристики изделия:
ПараметрЗначение
длина5950 мм
ширина650 мм
высота800 мм
масса4750 кг
нормативный документТП 901-4-63.83

Б 1  Ригели  по Типовому проекту ТП 901-4-63.83.