ПТ 2-6 Плиты покрытия лотков

Чертеж изделия:
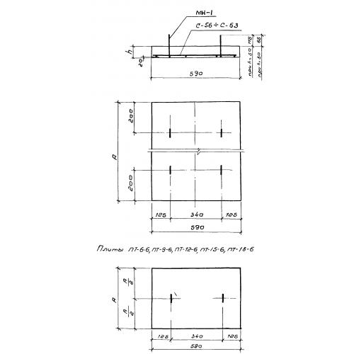
Характеристики изделия:
ПараметрЗначение
длина590 мм
ширина400 мм
высота50 мм
масса30 кг
нормативный документСерия 3.900.-3

ПТ 2-6 Плиты покрытия лотков по Серии 3.900.-3.