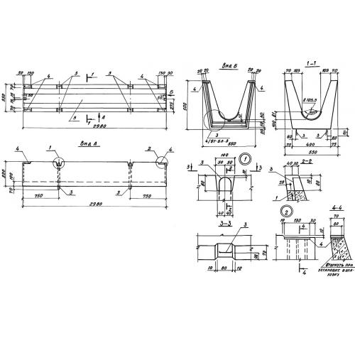
ЛК 298.55.50

Чертеж изделия:
Характеристики изделия:
ПараметрЗначение
длина2980 мм
ширина550 мм
высота500 мм
вес950 кг
серия3.818.9-2

ЛК 298.55.50  Лотки для каналов навозоудаления по серии 3.818.9-2.