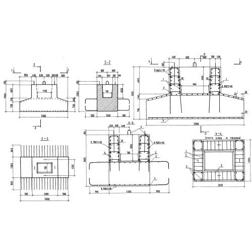
Ф 380-74

Чертеж изделия:
Характеристики изделия:
ПараметрЗначение
длина3400 мм
ширина3800 мм
высота2050 мм
вес20500 кг
нормативный документСерия 3.503.1-90

Ф 380-74 Симметричные блоки фундамента по Серии 3.503.1-90.