Б 135

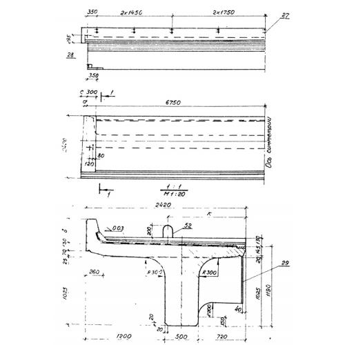
Чертеж изделия:
Характеристики изделия:
ПараметрЗначение
длина13500 мм
ширина2420 мм
высота1600 мм
вес39800 кг
Серия3.501.1-146

Б 135 Балки ребристые пролетных строений по Серии 3.501.1-146.