БУ 30-8

Чертеж изделия:
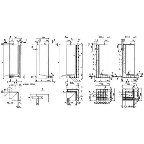
Характеристики изделия:
ПараметрЗначение
длина780 мм
ширина780 мм
высота3200 мм
масса2130 кг
нормативный документСерия 3.006.1-3/83

БУ 30-8  Блоки тоннелей угловые Серия 3.006.1-3/83.