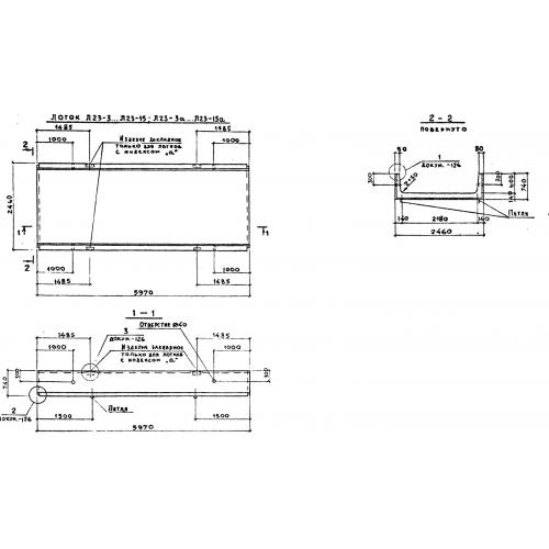
Л 23 лотки
Характеристики изделия:
| Параметр | Значение |
|---|---|
| длина | 5970 мм |
| ширина | 2460 мм |
| высота | 740 мм |
| масса | 7100 кг |
| нормативный документ | Серия 3.006.1-2/87 |
Цена:
Рассчитать стоимостьЛ 23 Лотки теплотрасс Серия 3.006.1-2/87.
| Параметр | Значение |
|---|---|
| длина | 5970 мм |
| ширина | 2460 мм |
| высота | 740 мм |
| масса | 7100 кг |
| нормативный документ | Серия 3.006.1-2/87 |
Л 23 Лотки теплотрасс Серия 3.006.1-2/87.
