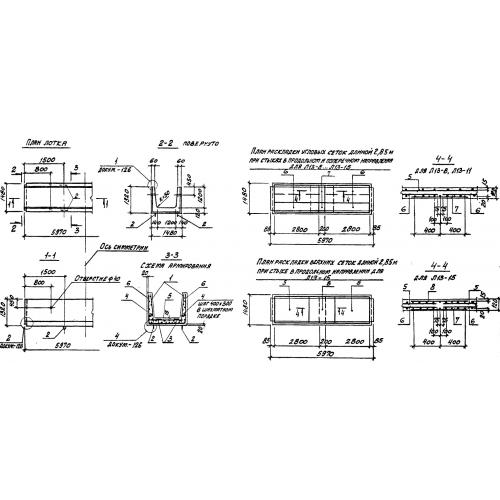
Л 13 лотки

Чертеж изделия:
Характеристики изделия:
ПараметрЗначение
длина5970 мм
ширина1480 мм
высота1320 мм
масса6300 кг
нормативный документСерия 3.006.1-2/87

Л 13 Лотки теплотрасс Серия 3.006.1-2/87.