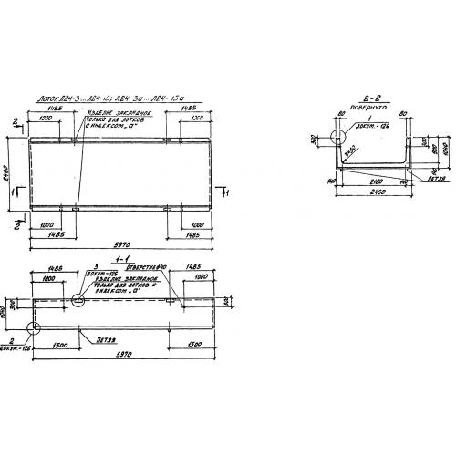
Л 24
Характеристики изделия:
| Параметр | Значение |
|---|---|
| длина | 5970 мм |
| ширина | 2460 мм |
| высота | 1040 мм |
| масса | 8100 кг |
| нормативный докуцмент | Серия 3.006.1-2/82 |
Цена:
Рассчитать стоимостьЛ 24 Лотки теплотрасс Серия 3.006.1-2/82.
| Параметр | Значение |
|---|---|
| длина | 5970 мм |
| ширина | 2460 мм |
| высота | 1040 мм |
| масса | 8100 кг |
| нормативный докуцмент | Серия 3.006.1-2/82 |
Л 24 Лотки теплотрасс Серия 3.006.1-2/82.
