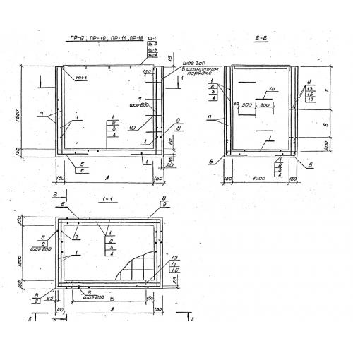
ПР-10
Характеристики изделия:
| Параметр | Значение |
|---|---|
| длина | 1600 мм |
| ширина | 1300 мм |
| высота | 1650 мм |
| вес | 3525 кг |
| серия | 3.006 КР-1 |
Цена:
Рассчитать стоимостьПР-10 Монолитные приямки по серии 3.006 КР-1.
| Параметр | Значение |
|---|---|
| длина | 1600 мм |
| ширина | 1300 мм |
| высота | 1650 мм |
| вес | 3525 кг |
| серия | 3.006 КР-1 |
ПР-10 Монолитные приямки по серии 3.006 КР-1.
