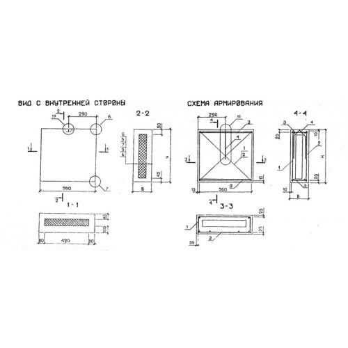
ПСТ 6.15.3.5 панели стеновые
Характеристики изделия:
| Параметр | Значение |
|---|---|
| длина | 580 мм |
| ширина | 350 мм |
| высота | 1485 мм |
| масса | 390 кг |
| нормативный документ | Серия 1.232.1-7 |
Цена:
Рассчитать стоимостьПСТ 6.15.3.5 Панели стеновые трехслойные (простеночные) Серия 1.232.1-7.
