РДС 4.66

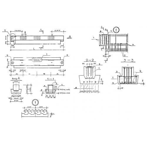
Чертеж изделия:
Характеристики изделия:
ПараметрЗначение
длина6610 мм
ширина550 мм
высота450 мм
вес2940 кг
серия1.220.1-2

РДС 4.66 Ригели покрытий по серии 1.220.1-2.