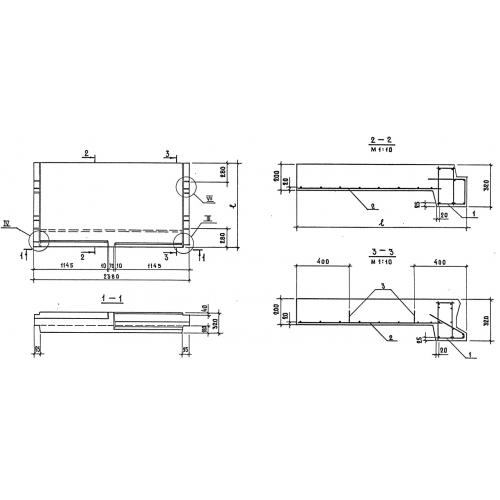
1ЛП 24.21

Чертеж изделия:
Характеристики изделия:
ПараметрЗначение
длина2380 мм
ширина2200 мм
высота320 мм
масса2530 кг
нормативный документСерия 1.152.1-8

1ЛП 24.21  Лестничные площадки плоские Серия 1.152.1-8.