ПР 60.15

Чертеж изделия:
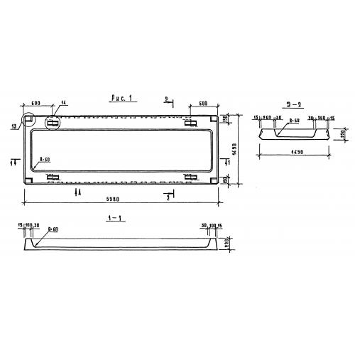
Характеристики изделия:
ПараметрЗначение
длина5980 мм
ширина1490 мм
высота220 мм
вес2800 кг
серия1.090.1-1/88

ПР 60.15 Ребристые плиты перекрытий по серии 1.090.1-1/88.