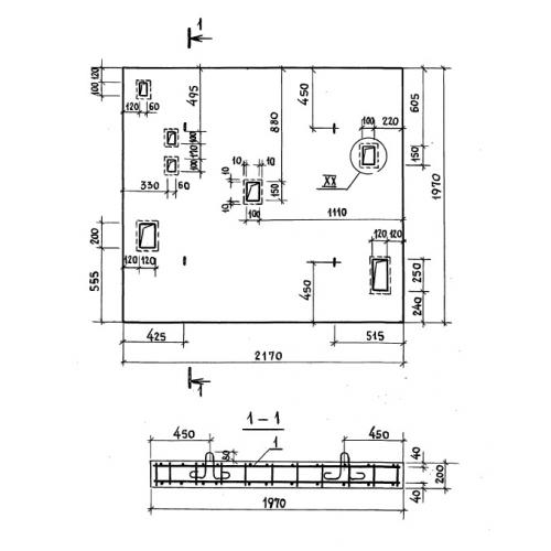
ПЛ 50-22

Чертеж изделия:
Характеристики изделия:
ПараметрЗначение
длина2170 мм
ширина1970 мм
высота200 мм
вес2100 кг
серия1.089.1-2

ПЛ 50-22 Плиты перекрытия над шахтой пассажирского лифта по серии 1.089.1-2.