К 10
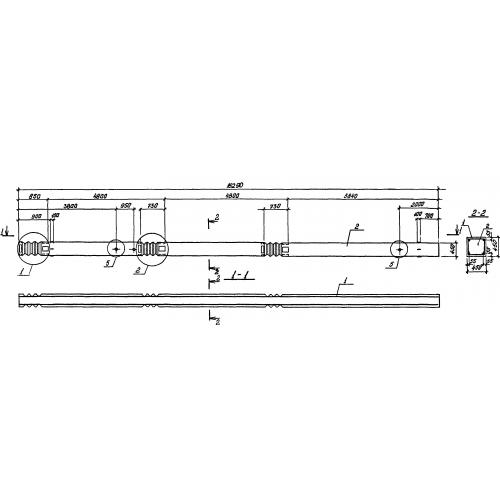
Характеристики изделия:
| Параметр | Значение |
|---|---|
| длина | 16290 мм |
| ширина | 450 мм |
| высота | 450 мм |
| масса | 8200 кг |
| нормативный документ | ГОСТ 27108-86 |
Цена:
Рассчитать стоимостьК 10 Колонны ГОСТ 27108-86.
| Параметр | Значение |
|---|---|
| длина | 16290 мм |
| ширина | 450 мм |
| высота | 450 мм |
| масса | 8200 кг |
| нормативный документ | ГОСТ 27108-86 |
К 10 Колонны ГОСТ 27108-86.
